Drabina ewakuacyjna z koszem – Poznań
Bezpieczeństwo w budynkach to nie tylko obowiązek prawny, ale przede wszystkim troska o życie i zdrowie osób przebywających w obiekcie. Jednym z najskuteczniejszych sposobów zapewnienia szybkiej ewakuacji są drabiny ewakuacyjne z koszem. W Poznaniu oferujemy produkty, które łączą funkcjonalność, trwałość i łatwość użytkowania. Drabina ewakuacyjna z koszem umożliwia bezpieczne opuszczenie budynku, a jej dodatkowa osłona w postaci kosza zwiększa ochronę przed przypadkowym upadkiem.
Wybierając drabinę ewakuacyjną z koszem w Poznaniu, inwestujesz w rozwiązanie sprawdzone, odporne na warunki atmosferyczne i intensywne użytkowanie. Nasze produkty są projektowane tak, aby zapewnić maksymalne bezpieczeństwo zarówno w sytuacjach awaryjnych, jak i przy codziennym korzystaniu przez personel budynku.
Dlaczego warto wybrać drabinę ewakuacyjną?
Drabina ewakuacyjna to element obowiązkowy w każdym budynku, w którym bezpieczeństwo użytkowników jest priorytetem. W przeciwieństwie do zwykłych drabin, drabiny ewakuacyjne w Poznaniu są projektowane z myślą o szybkiej i bezpiecznej ewakuacji w sytuacjach stresowych.
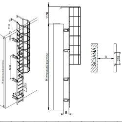
Drabina ewakuacyjna wyposażona w kosz ochronny, czyli drabina ewakuacyjna z koszem, znacząco zwiększa bezpieczeństwo użytkowników. Kosz zapobiega przypadkowym upadkom i daje poczucie stabilności osobom korzystającym z drabiny. W Poznaniu coraz więcej inwestorów wybiera właśnie drabiny ewakuacyjne z koszem, ponieważ zapewniają one najwyższy poziom ochrony i są zgodne z obowiązującymi normami bezpieczeństwa, takimi jak PN_EN ISO 14122-4.
Każda drabina ewakuacyjna w naszej ofercie jest trwała, odporna na uszkodzenia mechaniczne i warunki atmosferyczne, co gwarantuje długowieczność produktu. Dzięki temu właściciele budynków w Poznaniu mają pewność, że inwestycja w drabinę ewakuacyjną z koszem to rozwiązanie na lata.


Zalety drabin ewakuacyjnych z koszem
Drabina ewakuacyjna z koszem to nie tylko bezpieczeństwo, ale również wygoda użytkowania. Modułowa konstrukcja pozwala dopasować drabinę do wysokości budynku, a solidne mocowania zapewniają stabilność w każdej sytuacji. W Poznaniu nasze drabiny ewakuacyjne z koszem są wykorzystywane zarówno w budynkach mieszkalnych, jak i przemysłowych czy użyteczności publicznej.
Dodatkowe zalety drabiny ewakuacyjnej z koszem to łatwość montażu, antypoślizgowe stopnie i estetyczny wygląd. Wybierając nasze produkty w Poznaniu, inwestujesz w rozwiązanie, które łączy bezpieczeństwo, funkcjonalność i trwałość. Drabina ewakuacyjna z koszem zapewnia pewność ewakuacji, a jednocześnie harmonijnie wpisuje się w architekturę budynku.
Drabina ewakuacyjna w formie z koszem jest również idealnym rozwiązaniem w miejscach, gdzie liczba użytkowników może być duża. Kosz ochronny minimalizuje ryzyko poślizgnięcia lub utraty równowagi, co jest szczególnie ważne w sytuacjach awaryjnych. W Poznaniu nasze drabiny ewakuacyjne z koszem cieszą się rosnącą popularnością, ponieważ są w stanie sprostać nawet najbardziej wymagającym standardom bezpieczeństwa.
Zastosowanie drabin ewakuacyjnych w Poznaniu
W Poznaniu drabiny ewakuacyjne znajdują zastosowanie w budynkach o różnym przeznaczeniu. Mogą być montowane w biurowcach, halach produkcyjnych, szkołach, a także w obiektach mieszkalnych wielopiętrowych. Wybór odpowiedniej drabiny ewakuacyjnej z koszem gwarantuje, że każda osoba w sytuacji awaryjnej będzie mogła bezpiecznie opuścić budynek.
Nasze drabiny ewakuacyjne z koszem w Poznaniu spełniają rygorystyczne normy bezpieczeństwa i posiadają wszystkie certyfikaty wymagane przez prawo. Produkty są odporne na działanie warunków atmosferycznych, łatwe w konserwacji i niezwykle trwałe. Drabina ewakuacyjna z koszem zapewnia stabilność i komfort, a dzięki swojej konstrukcji może być dostosowana do wysokości i rodzaju budynku.










