Drabina ewakuacyjna bez kosza – Poznań
Bezpieczeństwo w budynkach to priorytet, który nie może być pomijany. W sytuacjach awaryjnych, takich jak pożar, zalanie czy inne zagrożenia, liczy się każda sekunda. Jednym z najważniejszych elementów zapewniających szybkie i bezpieczne opuszczenie budynku są drabiny ewakuacyjne bez kosza. W Poznaniu oferujemy produkty, które łączą funkcjonalność, trwałość i estetykę. Nasza drabina ewakuacyjna bez kosza jest rozwiązaniem praktycznym, szczególnie w obiektach, w których nie ma potrzeby stosowania dodatkowych osłon ochronnych. Dzięki niej każdy użytkownik może sprawnie i bezpiecznie opuścić budynek w nagłych sytuacjach, a jej solidna konstrukcja gwarantuje niezawodność przez wiele lat.
Oferowane w Poznaniu drabiny ewakuacyjne bez kosza są łatwe w montażu, a jednocześnie stabilne i odporne na warunki atmosferyczne. W przeciwieństwie do drabin z koszem, które wymagają większej przestrzeni i dodatkowego mocowania, nasze rozwiązanie jest lekkie, kompaktowe i praktyczne w zastosowaniu. Dzięki modułowej konstrukcji drabina ewakuacyjna bez kosza może być dostosowana do różnych wysokości budynków, co czyni ją idealnym wyborem dla inwestorów i właścicieli obiektów w Poznaniu.
Drabina ewakuacyjna – niezawodność i bezpieczeństwo
Drabina ewakuacyjna jest kluczowym elementem wyposażenia budynków, w których bezpieczeństwo osób jest najważniejsze. W naszej ofercie w Poznaniu znajdziesz drabiny ewakuacyjne wykonane z trwałych materiałów, odpornych na uszkodzenia mechaniczne i zmienne warunki pogodowe. Każda drabina ewakuacyjna zapewnia stabilność dzięki solidnym uchwytom montażowym i antypoślizgowym stopniom. Te cechy sprawiają, że drabiny ewakuacyjne gwarantują komfort i pewność kroku nawet w stresujących sytuacjach awaryjnych.
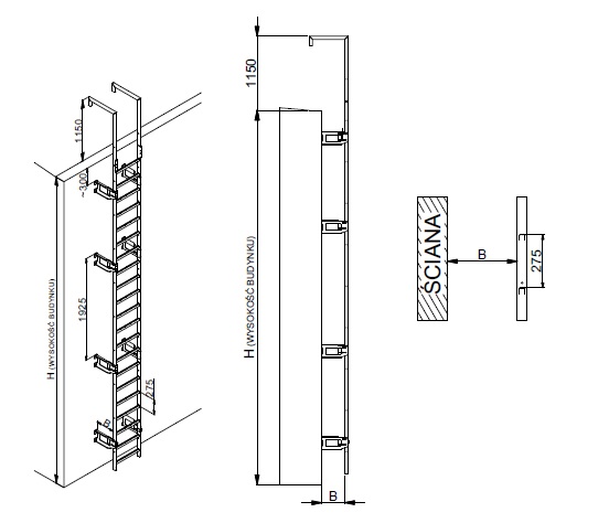
Wybierając drabinę ewakuacyjną w Poznaniu, inwestujesz w produkt, który spełnia rygorystyczne normy bezpieczeństwa, takie jak PN_EN ISO 14122-4 czy DIN 14 091-1. Nasze drabiny ewakuacyjne mogą być stosowane zarówno w nowych obiektach, jak i w modernizowanych budynkach, gdzie wymagana jest szybka ewakuacja. Dzięki modułowej budowie możliwe jest dopasowanie długości drabiny do potrzeb danego budynku, co zwiększa funkcjonalność i uniwersalność produktu.
Dodatkowym atutem drabiny ewakuacyjnej jest jej trwałość i odporność na intensywne użytkowanie. Produkty oferowane w Poznaniu łączą wysoką jakość wykonania z praktycznym zastosowaniem – są łatwe w konserwacji i służą niezawodnie przez wiele lat, co czyni je inwestycją w bezpieczeństwo obiektu i jego użytkowników.
Drabina bez kosza – praktyczne i funkcjonalne rozwiązanie
Dla budynków, w których nie jest wymagany kosz ochronny, idealnym wyborem jest drabina bez kosza. Ta drabina ewakuacyjna łączy solidną konstrukcję, trwałość i łatwość montażu. Dzięki modułowej budowie drabina bez kosza może być dopasowana do różnej wysokości budynków, a jej lekka, a jednocześnie stabilna konstrukcja zapewnia bezpieczeństwo użytkowników. W nagłych sytuacjach drabina ta umożliwia szybkie opuszczenie budynku, bez ryzyka poślizgnięcia się czy utraty równowagi.
W Poznaniu coraz więcej inwestorów wybiera drabiny bez kosza ze względu na ich prostotę i funkcjonalność. Drabina ewakuacyjna bez kosza jest idealna zarówno do budynków mieszkalnych, przemysłowych, jak i użyteczności publicznej. Dzięki łatwemu montażowi i kompaktowym wymiarom, drabina bez kosza może być zastosowana w miejscach o ograniczonej przestrzeni, co czyni ją uniwersalnym rozwiązaniem.
Dodatkowo nasze drabiny bez kosza spełniają wszystkie normy bezpieczeństwa, w tym PN_EN ISO 14122-4 oraz DIN 14 091-1. To gwarancja niezawodności i komfortu użytkowania, nawet w sytuacjach stresowych, gdzie liczy się szybka reakcja i bezpieczeństwo osób przebywających w budynku.
Drabina ewakuacyjna bez kosza w Poznaniu – zalety i zastosowanie
W Poznaniu drabina ewakuacyjna bez kosza jest coraz częściej wybierana przez inwestorów i właścicieli budynków, którzy poszukują prostych i skutecznych rozwiązań ewakuacyjnych. Nasza drabina bez kosza sprawdza się zarówno w budynkach mieszkalnych, jak i przemysłowych, gdzie priorytetem jest szybka i bezpieczna ewakuacja. Produkty oferowane w Poznaniu gwarantują stabilność i wytrzymałość, dzięki czemu drabina ewakuacyjna bez kosza jest niezawodnym rozwiązaniem przez wiele lat.
Wybierając naszą drabinę ewakuacyjną bez kosza, zyskujesz pewność, że budynek będzie wyposażony w funkcjonalny i bezpieczny system ewakuacyjny. Drabina bez kosza w Poznaniu jest łatwa w montażu, odporna na warunki atmosferyczne i intensywne użytkowanie, a jej modułowa konstrukcja pozwala dopasować długość drabiny do wysokości budynku. Dzięki temu produkt ten stanowi inwestycję w bezpieczeństwo użytkowników oraz spokój właścicieli obiektów.
Nie należy też zapominać, że drabina ewakuacyjna bez kosza to rozwiązanie ekonomiczne – prostota konstrukcji i łatwość montażu sprawiają, że jest to opcja dostępna dla różnych typów obiektów, niezależnie od wielkości i przeznaczenia. Wybierając nasze produkty w Poznaniu, masz pewność, że drabina ewakuacyjna bez kosza spełni wszystkie wymogi prawne i normy bezpieczeństwa, zapewniając pełną ochronę użytkownikom budynku.




